Vente Appartement rennes
666 000 € * - 93.37 m2 - 3 Chambres - Réf. CBN11714

Vente Appartement
rennes
666 000 € *
  • 4 Pièces
  • 3 Chambres
  • 93.37 m2

RENNES Bd de Metz - Grand T4 avec splendide terrasse !

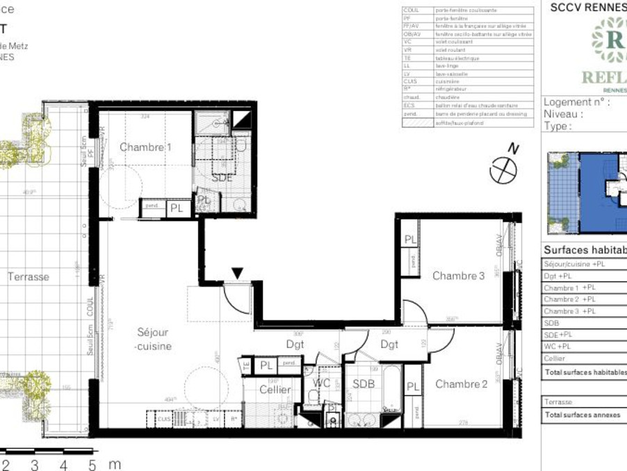
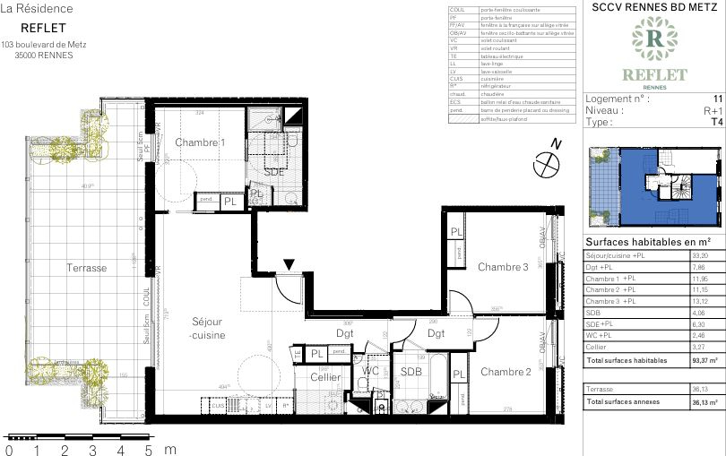
RENNES Bd de Metz - Au sein d'une résidence de standing, COGIR Immobilier vous présente ce beau T4 de 93.37 m². Il comprend une entrée, un spacieux salon-séjour de 33.20 m² desservant une magnifique terrasse de plus de 36 m², 3 belles chambres équipées de placard, une salle de bain, une salle d'eau, WC séparés ainsi qu'une buanderie.
Vous bénéficierez également d'un stationnement.

A visiter sans tarder ! Ref. CBN11714

Corinne BOUFFORT - 06.08.47.94.30 - corinne.bouffort@cogir.fr
  • Référence : CBN11714
  • Ville : rennes
  • Transaction : Vente
  • Type de bien : Appartement
  • Prix : 666 000 €
  • Surface : 93,37 m2
  • Année de construction : 2024
  • Ascenseur : Oui
  • Nbr de pièces : 4
  • Nbr de chambres : 3
  • Nbr SDB : 1
  • Nbr SE : 1
Performance énergétique (en KWh/m2/an)
Dpe
Performance climatique (en Kg éq CO2/m2/an)
Ges
Montant estimé des dépenses annuelles d’énergie pour un usage standard : année de référence 0 - de 0€ à 0€
35 - Ille Et Vilaine
Montant En % du prix du bien
Emoluments notaire %
Copies & formalités notaire 800 %
Total notaire %
Droits de mutation 5.80%
Publicité foncière 0.10%
Debours 400 %
TVA (sur part notaire) %
Total %
Informations non contractuelles, fournies à titre indicatif
Contactez-nous
* champs obligatoires
Biens similaires
L'immobilier à Renens
  • Alerte email
  • Favoris 0
  • 0