Vente Appartement rennes
680 000 € * - 93.96 m2 - 3 Chambres - Réf. CBN9975A

Vente Appartement
rennes
680 000 € *
  • 4 Pièces
  • 3 Chambres
  • 93.96 m2

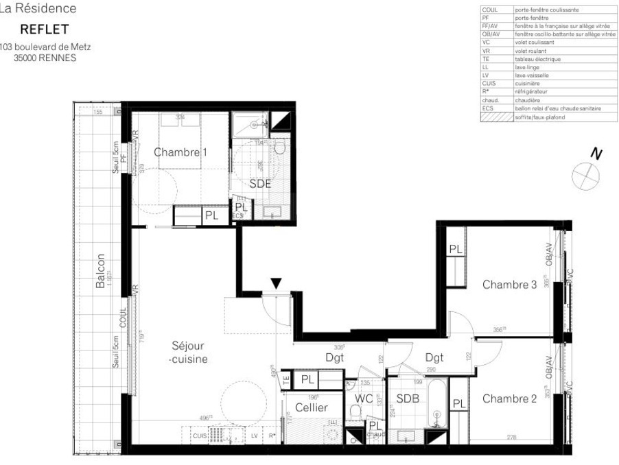
Rennes - Sévigné/Fougères - Appartement T4 avec balcon et parking

COGIR Neuf vous propose :
RENNES - Quartier Sévigné / Fougères - A proximité immédiate des parcs rennais et du centre-ville grâce à la nouvelle station de métro Jules Ferry, venez découvrir cette Résidence de 7 appartements pour habiter ou investir.
Vous y trouverez cet appartement 4 pièces de 93 m2 comprenant : 3 chambres avec placard, un cellier, 1 salle d'eau, 1 salle de bain, 1 WC individuel et un spacieux séjour/cuisine de 33m² donnant sur un balcon de 18 m2 exposé Sud-Ouest.
Cette résidence propose également un jardin intérieur commun.

Eligible au dispositif PINEL

T1 à partir de 199 000.00€- TTC.

Corinne BOUFFORT : 06.08.47.94.30 / CBN9975
  • Référence : CBN9975A
  • Ville : rennes
  • Transaction : Vente
  • Type de bien : Appartement
  • Prix : 680 000 €
  • Surface : 93,96 m2
  • Nbr d'étages : 5
  • Ascenseur : Oui
  • Nbr de pièces : 4
  • Nbr de chambres : 3
  • Nbr SDB : 1
  • Nbr SE : 1
  • Parking : 1
Performance énergétique (en KWh/m2/an)
Dpe
Performance climatique (en Kg éq CO2/m2/an)
Ges
Montant estimé des dépenses annuelles d’énergie pour un usage standard : année de référence 0 - de 0€ à 0€
35 - Ille Et Vilaine
Montant En % du prix du bien
Emoluments notaire %
Copies & formalités notaire 800 %
Total notaire %
Droits de mutation 5.80%
Publicité foncière 0.10%
Debours 400 %
TVA (sur part notaire) %
Total %
Informations non contractuelles, fournies à titre indicatif
Contactez-nous
* champs obligatoires
Biens similaires
Exclusivité
774 800 € HAI
RENNES GRAND T5 DE 125 M2 THABOR-SEVIGNE AVEC TERRASSE ET PARKING dans très bel immeuble de STANDING comprenant : Entrée avec placards, grande pièce de vie (55 m2) exposée SUD avec cuisine US aménag...
  • Nbr de pièces
    5
  • Nbr de chambres
    3
  • Nbr d'étages
    5
774 800 € HAI
* Les honoraires d'agence seront intégralement à la charge de l'acquéreur
  • 5 Pièces
  • 3 Chambres
  • 125 m2
Réf. RG5156
L'immobilier à Renens
  • Alerte email
  • Favoris 0
  • 0