Vente Appartement saint malo
505 500 € * - 77.29 m2 - 3 Chambres - Réf. CBN9988A

Vente Appartement
saint malo
505 500 € *
  • 4 Pièces
  • 3 Chambres
  • 77.29 m2

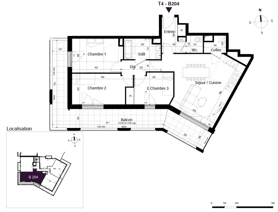
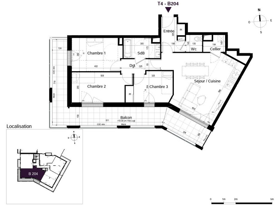
Saint-Malo - quartier Gare - Appartement T4 de 77 m2 avec balcon et parkings

COGIR Neuf vous propose :
SAINT-MALO - quartier de la gare- Idéalement située proche de la mer et à 5 min à pied de la gare, venez découvrir cette nouvelle résidence de 82 logements pour habiter ou investir.
Vous y trouverez cet appartement 4 pièces au 2ème étage comprenant : Une entrée avec placard, 3 chambres, une salle de bain, un WC séparé et un séjour cuisine de 27 m2 donnant sur un spacieux balcon de 28 m2 exposé Sud-Ouest.
L'appartement dispose également de 2 places de parking en souterrain.

Eligible au dispositif PINEL.

T3 à partir de 346 000€- TTC
T4 à partir de 505 500€- TTC
T5 à partir de 650 000€- TTC

Corinne BOUFFORT : 06.08.47.94.30 - CBN9988
  • Référence : CBN9988A
  • Ville : saint malo
  • Transaction : Vente
  • Type de bien : Appartement
  • Prix : 505 500 €
  • Surface : 77,29 m2
  • Nbr d'étages : 6
  • Ascenseur : Oui
  • Nbr de pièces : 4
  • Nbr de chambres : 3
  • Parking : 2
Performance énergétique (en KWh/m2/an)
Dpe
Performance climatique (en Kg éq CO2/m2/an)
Ges
Montant estimé des dépenses annuelles d’énergie pour un usage standard : année de référence 0 - de 0€ à 0€
35 - Ille Et Vilaine
Montant En % du prix du bien
Emoluments notaire %
Copies & formalités notaire 800 %
Total notaire %
Droits de mutation 5.80%
Publicité foncière 0.10%
Debours 400 %
TVA (sur part notaire) %
Total %
Informations non contractuelles, fournies à titre indicatif
Contactez-nous
* champs obligatoires
Biens similaires
  • Alerte email
  • Favoris 0
  • 0