Vente Appartement saint erblon
286 000 € * - 81.67 m2 - 3 Chambres - Réf. CBN9175c

Vente Appartement
saint erblon
286 000 € *
  • 4 Pièces
  • 3 Chambres
  • 81.67 m2

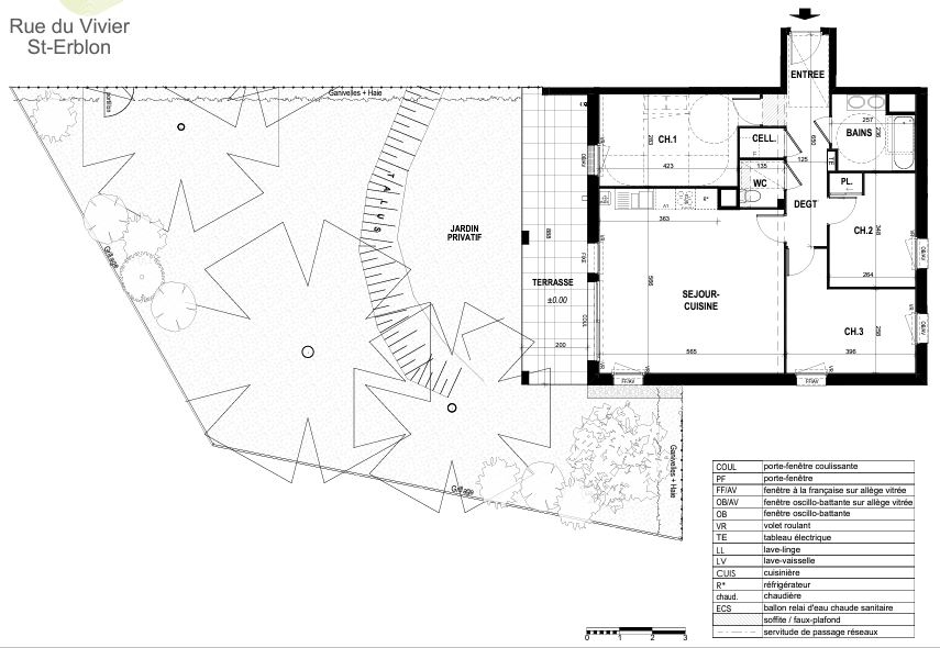
SAINT-ERBLON - T4 de 81.67 m² avec grande terrasse et jardin privatif !

COGIR Neuf vous propose :
SAINT-ERBLON - à une dizaine de kilomètres au Sud de Rennes, située à 5 min du bourg et de ses nombreux commerces, la Résidence 'GRANDS BOIS' vous apporte sérénité et confort.
Vous y découvrirez ce beau T4 en rez-de-jardin de 81.67 m² avec sa grande terrasse de 17.73m² et son jardin privatif de 168 m² comprenant un séjour/salon de 30.67m², 3 chambres dont 2 avec placard, une salle de bains, WC séparés et un cellier.
L'appartement dispose également de 2 places de parking en souterrain.

Eligible dispositif PINEL

Corinne BOUFFORT : 06.08.47.94.30 - Ref. CBN9175
  • Référence : CBN9175c
  • Ville : saint erblon
  • Transaction : Vente
  • Type de bien : Appartement
  • Prix : 286 000 €
  • Surface : 81,67 m2
  • Ascenseur : Oui
  • Nbr de pièces : 4
  • Nbr de chambres : 3
Performance énergétique (en KWh/m2/an)
Dpe
Performance climatique (en Kg éq CO2/m2/an)
Ges
Montant estimé des dépenses annuelles d’énergie pour un usage standard : année de référence 0 - de 0€ à 0€
35 - Ille Et Vilaine
Montant En % du prix du bien
Emoluments notaire %
Copies & formalités notaire 800 %
Total notaire %
Droits de mutation 5.80%
Publicité foncière 0.10%
Debours 400 %
TVA (sur part notaire) %
Total %
Informations non contractuelles, fournies à titre indicatif
Contactez-nous
* champs obligatoires
Biens similaires
286 500 € *
COGIR Neuf vous propose :
SAINT JACQUES DE LA LANDE - Au sein d'une nouvelle résidence mêlant qualité de vie et respect de l'environnement à proximité immédiate des écoles et des transports, déco...
  • Nbr de pièces
    4
  • Nbr de chambres
    3
  • Nbr d'étages
    4
  • Ascenseur
    Oui
  • Parking
    2
286 500 € *

  • 4 Pièces
  • 3 Chambres
  • 81.01 m2
Réf. CBN9535C
  • Alerte email
  • Favoris 0
  • 0