Vente Appartement rennes
190 000 € * - 34.37 m2 - Réf. CBN9815H

Vente Appartement
rennes
190 000 € *
  • 1 Pièce
  • 34.37 m2

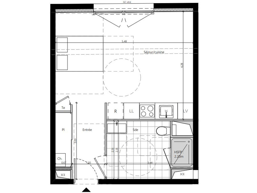
RENNES quartier Lorient - Saint-Brieuc - Studio de 34.37 m²

COGIR Neuf vous propose :
RENNES quartier Lorient - Saint-Brieuc - A proximité immédiate des commerces et du mail François Mitterrand, venez découvrir cette Résidence rayonnante de 40 appartements pour habiter ou investir.
Vous y trouverez ce studio de 34 m² comprenant : une entrée avec placard, un séjour/cuisine de 22 m² et une salle d'eau avec WC.
Idéal Investissement locatif !

Mesures fiscales : PINEL / L.M.N.P

T2 à partir de 250 000.00€- TTC
T3 à partir de 365 000.00€- TTC
T4 à partir de 695 000.00€- TTC

Corinne BOUFFORT : 06.08.47.94.30 / CBN9815
  • Référence : CBN9815H
  • Ville : rennes
  • Transaction : Vente
  • Type de bien : Appartement
  • Prix : 190 000 €
  • Surface : 34,37 m2
  • Ascenseur : Oui
  • Nbr de pièces : 1
Performance énergétique (en KWh/m2/an)
Dpe
Performance climatique (en Kg éq CO2/m2/an)
Ges
Montant estimé des dépenses annuelles d’énergie pour un usage standard : année de référence 0 - de 0€ à 0€
35 - Ille Et Vilaine
Montant En % du prix du bien
Emoluments notaire %
Copies & formalités notaire 800 %
Total notaire %
Droits de mutation 5.80%
Publicité foncière 0.10%
Debours 400 %
TVA (sur part notaire) %
Total %
Informations non contractuelles, fournies à titre indicatif
Contactez-nous
* champs obligatoires
Biens similaires
L'immobilier à Renens
  • Alerte email
  • Favoris 0
  • 0